MĚSTSKÝ DŮM V PRAZE

Lokalita: Praha
Projekt: 2022
Team: Pavel Machar, Radek Teichman, Jiří Mach
Klient: veřejná soutěž
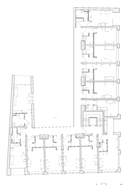
Návrh městského domu kombinuje nadčasovost s multifunkčním parterem a propojeným vnitroblokem. Ve vnitrobloku je zahrada pro dětskou skupinu a vyvýšená terasa se sdíleným komunitním prostorem. Pavlače otevírají byty směrem do vnitrobloku, čímž podporují sousedskou interakci. Byty mají velká posuvná okna a jsou příčně provětrané.
Hmotově dům respektuje regulativy – vyšší hmota do ulice Železničářů je akcentována na nároží jako lokální dominanta. Pavlačová koncepce umožňuje příčné provětrání a optimalizuje ekonomiku výstavby. Ve vnitrobloku je vertikální akcent obytné „věže“, kontrastující s horizontálami pavlačí a transparentním parterem.
Architektonicky střízlivý dům reflektuje modulové uspořádání bytů. Krajní pole fasády a vstup jsou zvýrazněny lodžiemi. Omítková hmota doplňuje keramický sokl, ustoupené patro ladí materiálově i barevně. Velká posuvná dřevěná okna opticky zvětšují byty a při otevření vytvářejí dojem lodžie. Dům podporuje interakci mezi obyvateli a funkcemi. Vnitroblok je prostupný, slouží k setkávání, ukládání kol a posezení. Ve 2. NP se nachází komunitní klubovna se zelenou střechou. Na 6. NP je sdílená střešní terasa, propojená s hlavním schodišťovým jádrem.








DALŠÍ PROJEKTY

MĚSTSKÝ DŮM V PRAZE
Lokalita: Praha
Projekt: 2022
Team: Pavel Machar, Radek Teichman, Jiří Mach
Klient: veřejná soutěž








Návrh městského domu kombinuje nadčasovost s multifunkčním parterem a propojeným vnitroblokem. Ve vnitrobloku je zahrada pro dětskou skupinu a vyvýšená terasa se sdíleným komunitním prostorem. Pavlače otevírají byty směrem do vnitrobloku, čímž podporují sousedskou interakci. Byty mají velká posuvná okna a jsou příčně provětrané.
Hmotově dům respektuje regulativy – vyšší hmota do ulice Železničářů je akcentována na nároží jako lokální dominanta. Pavlačová koncepce umožňuje příčné provětrání a optimalizuje ekonomiku výstavby. Ve vnitrobloku je vertikální akcent obytné „věže“, kontrastující s horizontálami pavlačí a transparentním parterem.
Architektonicky střízlivý dům reflektuje modulové uspořádání bytů. Krajní pole fasády a vstup jsou zvýrazněny lodžiemi. Omítková hmota doplňuje keramický sokl, ustoupené patro ladí materiálově i barevně. Velká posuvná dřevěná okna opticky zvětšují byty a při otevření vytvářejí dojem lodžie. Dům podporuje interakci mezi obyvateli a funkcemi. Vnitroblok je prostupný, slouží k setkávání, ukládání kol a posezení. Ve 2. NP se nachází komunitní klubovna se zelenou střechou. Na 6. NP je sdílená střešní terasa, propojená s hlavním schodišťovým jádrem.
DALŠÍ PROJEKTY